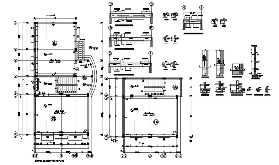
138’x105’ girls primary to middle school lower ground floor plan view


138’x105’ girls primary to middle school lower ground floor plan view is given. The lower ground floor column section is given with measurement details. Ramp, bathroom, verandah, and classrooms are available. 

#cadbull #autocad #architecture #smallhouse #middleschool #middle #floorplan #girlsprimary #primaryschool #hostel #girlshostel #view #autocaddrawing #measurement

https://cadbull.com/detail/191235/138%E2%80%99x105%E2%80%99-girls-primary-to-middle-school-lower-ground-floor-plan-view

Comments

Popular posts from this blog

10x16m architecture 4bhk house plan CAD drawing is given in this file

20x15 Meter 1 BHK AutoCAD Plan Layout File

23x12m first floor house plan AutoCAD drawing